Lys 2/3-roms leilighet med hems og balkong med sjøutsikt – Menton
Virtual tour
Beskrivelse
*** RESERVERAD ***
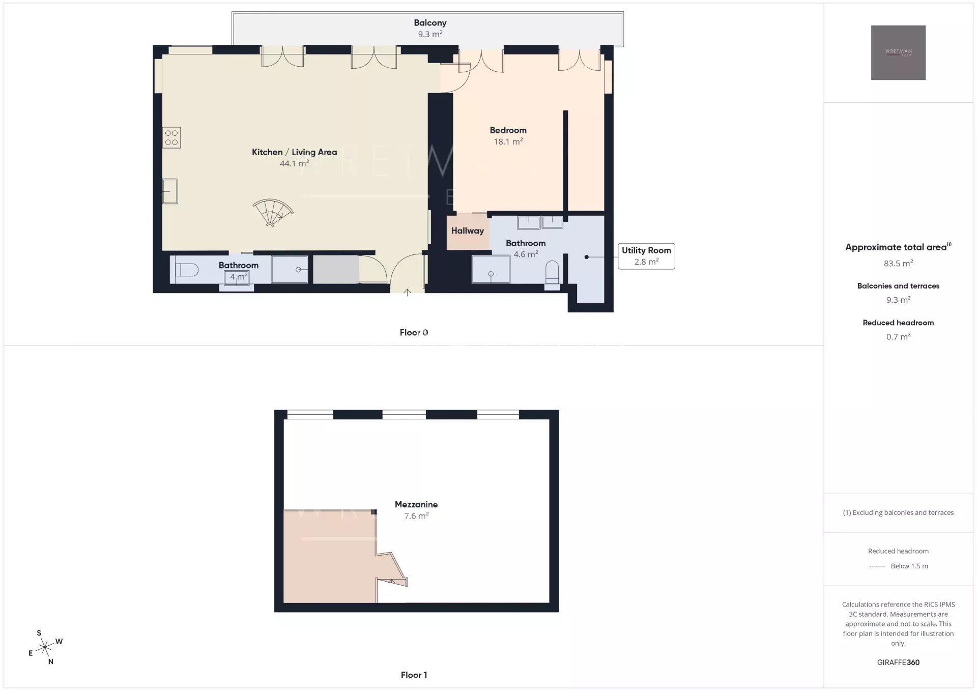
I hjertet av Menton sentrum, i en prestisjefylt Belle Époque-residens med hage, tilbyr denne flotte renoverte 2/3-roms leiligheten på 78 m² en balkong med åpen utsikt over byen og havet.
Med høy takhøyde og romslige volumer kombinerer leiligheten på en elegant måte modernitet og komfort med tidløs sjarm.
Allerede ved inngangen vil du bli begeistret av den store og lyse stuen med fullt utstyrt åpen kjøkkenløsning, som åpner ut mot en balkong med nydelig utsikt.
Takket være takhøyden har oppholdsrommet også en hems med en koselig kontorplass, samt et dusjbad og toalett med elegante detaljer.
Hovedsoverommet har walk-in-garderobe, utgang til balkongen og et stilfullt dusjbad i italiensk stil, toalett samt et separat vaskerom.
Selges med kjellerbod og mulighet for å kjøpe garasje mot et tillegg eller leie.
Garantert å stjele hjertet ditt.













- Type objekt Til salgs
- Referanse 85787071
- Type eiendom Leilighet
- Type eiendom Leilighet
- Byer Menton
- Område Menton og områdene rundt
- Soverom 1
- Bathrooms 2
- Størrelse 75.35 m²
- Antall rom 3
- Honoraires Selgers provisjon
- Taxe foncière 1211 €
- Fellesutgifter 487 € / Kvartal
- Nombre de lots 184
- Beregnet boligareal Carrez 75.35 m²
- Elforbruk 203 kWhEP/m².år
- DPE Consommation 203
- Estimert energiutslipp 8 kg éqCO2/m².år
- DPE Estimation 8
- agenceID 11548
- propertySybtypeID 5
- propertyCategoryID 1
Størrelse
- Entré (1.77 m²)
- Oppholdsrom/kjøkken (42.35 m²)
- Dusjrom med toalett: 2
- Hems (7.6 m²)
- Soverom (13.2 m²)
- Vaskerom (2.77 m²)
- Klesbod (1.2 m²)
- Garasje
- Kjellerbod (7.06 m²)
- Klesbod (4.9 m²)
- Balkong (9.37 m²)
Fasiliteter
- Sentralstøvsuger
- Automasjonsanlegg
- Doble vinduer
- Internett
- Utebelysning
- Condominium garden
- Brannalarm
- Heis
- Fiber
- Elektrisk port
- Alarm
- Portkode
- Porttelefon
- Forsterket dør
- Video overvåket
- Videofon
I nærheten
- Flyplass (35 meter)
- Sentrum (5 minutter)
- Butikker (5 minutter)
- Jernbanestasjon (6 minutter)
- Hav (10 minutter)
- Strand (10 minutter)